Details der Wohnung
Ort der Wohnung:
06542 Allstedt, Sophienstraße 12 a
Anzahl der Wohnräume:
2
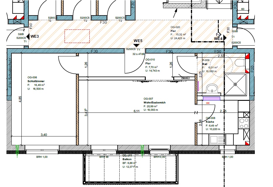
Wohnfläche:
60,00m²
Lage der Wohnung:
Sophienstraße
Etage der Wohnung:
1.Etage mitte
Etagen insgesamt:
1
Bodenbelag:
Linoleum und Fliesen
Haustiere:
genehmigungspflichtig
Heizungsart:
Wärmepumpe
PKW:
zusätzlich anmietbar
Kaltmiete:
360,00 EUR
Nebenkosten:
160,00 EUR
Heizkosten enthalten:
Ja
Heizkosten:
85,00 EUR
Gesamtmiete:
520,00 EUR
Geschäftsanteile (Kaution):
1080,00 EUR
verfügbar ab:
01.02.2026
Beschreibung
Das Objekt befindet sich in der Sophienstraße am Ortseingang von Allstedt. Einkaufsmöglichkeiten und andere Einrichtungen des täglichen Bedarfs sind fußläufig zu erreichen. Alle Räume sind mit Fenstern ausgestattet. Die Wohnung hat ein Wohnzimmer mit einen geräumigen Balkon, ein Schlafzimmer, Flur, Küche und ein Bad mit Dusche. Zur Wohnung gehört ein Abstellraum. Das Gebäude verfügt über einen Lift, welcher sich im Treppenhaus befindet. Ein PKW-Stellplatz kann zusätzlich angemietet werden. Die Betriebskosten sind für 2 Personen ausgelegt. Ein Wohnberechtigungsschein ist erforderlich.



